130㎡新中式住宅,清雅淡然!
户型:四居及以上
风格:中式现代
面积:130㎡
装修方式:半包
装修工期:95天
位置:华南碧桂园岭御苑
造价:20万元
方案说明
客户信息:1.业主是一对中年夫妻,孩子已经长大,不与父母居住,偶尔回来,家中还有一个老人家。2.女主人喜欢烹饪,所以厨房要大空间,要的有足够的操作空间。3.喜欢新中式的古典美。
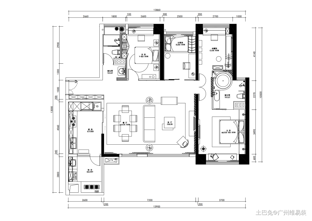
户型图
平面布置图
客厅
客餐厅整体造型古典,大理石挑板上枯山水绵延起伏,层次叠序;盘龙纽立铜盘,壁龛凹位嵌陈艺术装置——自然同人文底蕴相和,灵韵逸趣浑成。
卧室
主卧舍弃繁复修饰,回归人的主观体验——“忘适之适”牵引设计以一种“内放”的形式,造就含蓄而充满张力的细节。
老人房相对主卧而言,古典装带点清晰,定制榻榻米做衣柜书桌一体式。
卫生间
卫生间浴缸倾斜陈放,打破沉闷;设围夹丝玻璃屏风,飘洒几片落英,淡然轻眺,目寄心期。
衣帽间
超大的衣帽间是女主人最满意的空间,简单的柜体拼接,满足了储物的同时也不会显得拥挤。
走廊
主卧玄关两侧设柜体,中位自成端景,揉“储藏”及“展示”功能二维一体。
发布于2022年11月25日
@声明:上述内容由装企自行上传
来源:广州维易装
<<上一篇
遇见新中式之桃花源178平独栋
下一篇>>
华侨城










