大户型如何打造浪漫柔情法式风。
户型:四居及以上
风格:其他
面积:150㎡
装修方式:半包
装修工期:60天
位置:锦秋家园
造价:30万元
方案说明
空间布局上契合现代生活方式的功能区域划分,以现代框架为主题,以简洁和冷淡的现代底色,强烈的空间感和立体感,整个空间通透和大气。空间与空间相通相融的同时,使空间风格更具有统一和谐的装饰性,进而营造一种感性、超然的生活样式浮现眼前,自由惬意。素色为基础的主色又点缀以优雅的质感蓝色调,而让空间更有了生趣与生活的味道。
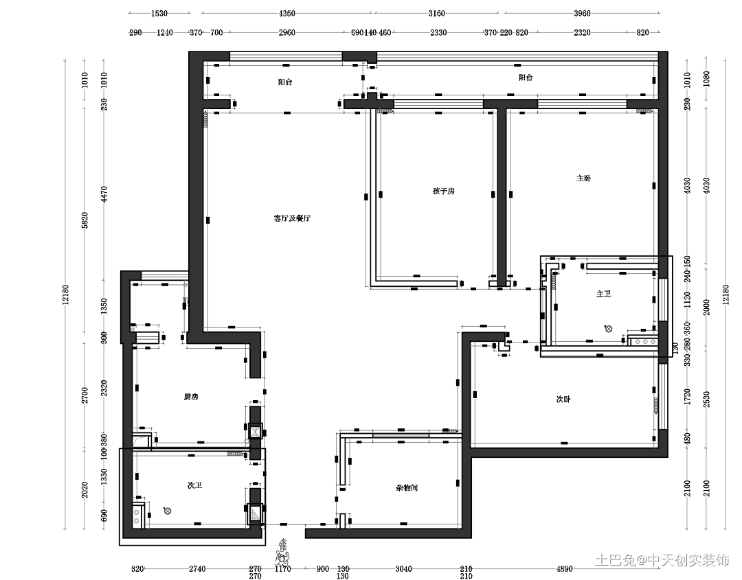
户型图
常规四居,打造浪漫法式。
客厅
大面积素色,点缀撞色
餐厅
电视柜法式风格板材
卧室
主卧舍弃传统法式的复杂线条,主打简约。
卫生间
卫生间简约不失单调
儿童房
儿童房设计玻璃展示柜,展示玩具
发布于2023年05月28日
@声明:上述内容由装企自行上传
来源:中天创实装饰
<<上一篇
当代的大气质住宅!!
下一篇>>
白桥苑151㎡现代轻奢





