白桥苑151㎡现代轻奢
户型:四居及以上
风格:其他
面积:151㎡
装修方式:全包
装修工期:45天
位置:白桥苑
造价:51万元
方案说明
该项目位于东城区,这个案例我多用金属线条来打造一个时尚并且优雅的空间,胡桃木也给整个空间带来了温馨舒适的感觉,现代轻奢相对于现代来说,多了几分品质和设计感,现代轻奢在简约的同时融合了简奢和内涵。
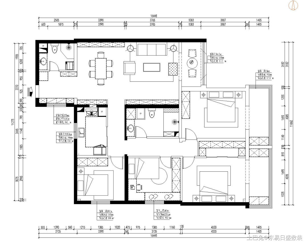
户型图
客厅
在入户门口放置了换鞋凳,垭口位置界定了入户玄关的位置。客餐厅一体化看起来更加大气与舒适
餐厅
在餐厅位置放置了餐边柜和酒柜,可以很好的解决储物与摆件问题
卧室
在色彩运用方面采用对比比较鲜明的颜色来布置,运用最流行的金属色调与光感呼应
儿童房
白色作为主基调的情况下,搭配部分黄铜饰品的金属感,给空间带来视觉上的层次感。在硬装方面没有做太多的造型设计,还是比较偏现代风。
发布于2021年09月01日
@声明:上述内容由装企自行上传
来源:东易日盛数装
<<上一篇
大户型如何打造浪漫柔情法式风。
下一篇>>
125平老房改造|牛油果绿打造半甜奶油风





